ABTA
Registered
|
EST: 2000
Open 7 days including evenings
01858 466888
Snow
finders
Ski Holiday Specialists
Ski Holidays
Accommodation
Holiday Types
Deals
01858 466888
Loading...
Find my ski holiday
Snowfinders
Ski Holidays
France
La Tania
Chalet Vallon Blanc
Chalet Vallon Blanc
REF: ASB070
CHALET
Facilities
Gallery
Overview
Map
Pricing
Make an Enquiry
Key Facilities
Sauna
WiFi
Additional Facilities
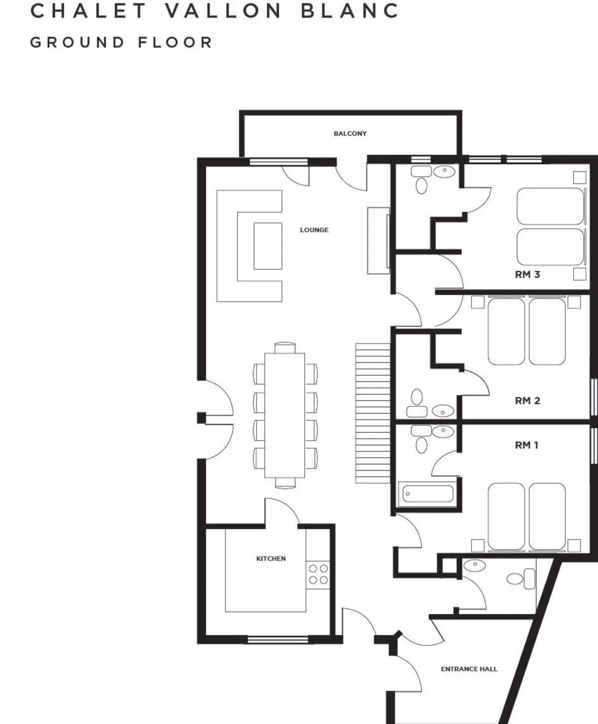
5 Bedrooms 5 Bathrooms Sauna Cinema Room Boot Warmers Log Fire Free WIFI Sun Terrace
At a Glance
Property Type
CHALET
Sleeps
10
Board Basis
CATERED
Distance to Piste
75m walk to the red piste or courtesy bus to the lift.
Distance to Town
10 minute walk