Verdons Suite
REF: AVP103CHALET|

Key Facilities
Hot TubSaunaWiFiChildcare
Additional Facilities
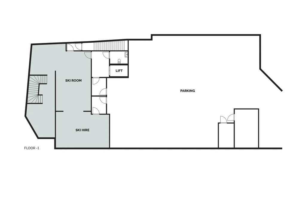
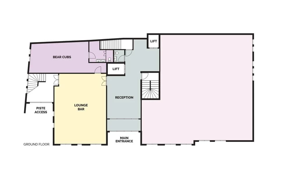
- Ski room door to blue piste at 2003m altitude Residence guest bar & lounge Small terrace with private hot tub Water vapour eco-fireplace WiFi
- UK FreeSat & Device Casting in all rooms Bean to coffee machine Minibar & ice machine Individual boot & glove warmers Private garage parking & EV charging Not suitable for those with reduced mobility (PRM) Chalet catering Welcome champagne & canapés Wake up drinks Daily cleaning (6 days) Eco-friendly ZERO% toiletries Reception & Concierge Service Massage & beauty treatments (local charge) Managed ski room with on-site ski shop Private ski nannies and Bear Cubs