ABTA
Registered
|
EST: 2000
Open 7 days including evenings
01858 466888
Snow
finders
Ski Holiday Specialists
Ski Holidays
Accommodation
Holiday Types
Deals
01858 466888
Loading...
Find my ski holiday
Snowfinders
Ski Holidays
France
La Plagne
Lhotse Suite
Lhotse Suite
REF: AVP112
CHALET
|
Facilities
Gallery
Overview
Map
Pricing
Make an Enquiry
Key Facilities
Hot Tub
WiFi
Childcare
Additional Facilities
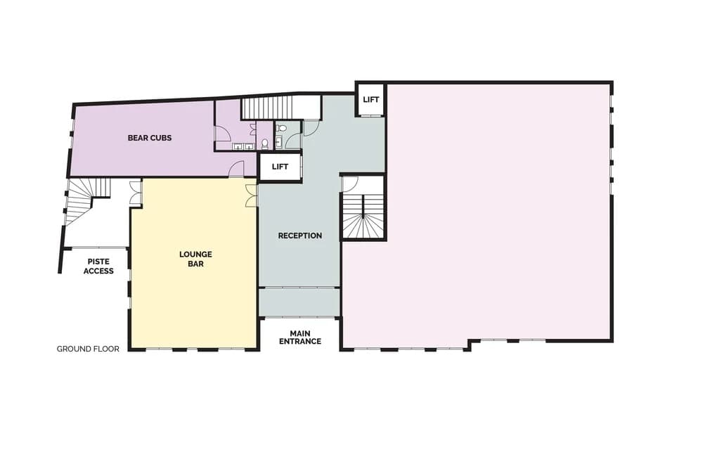
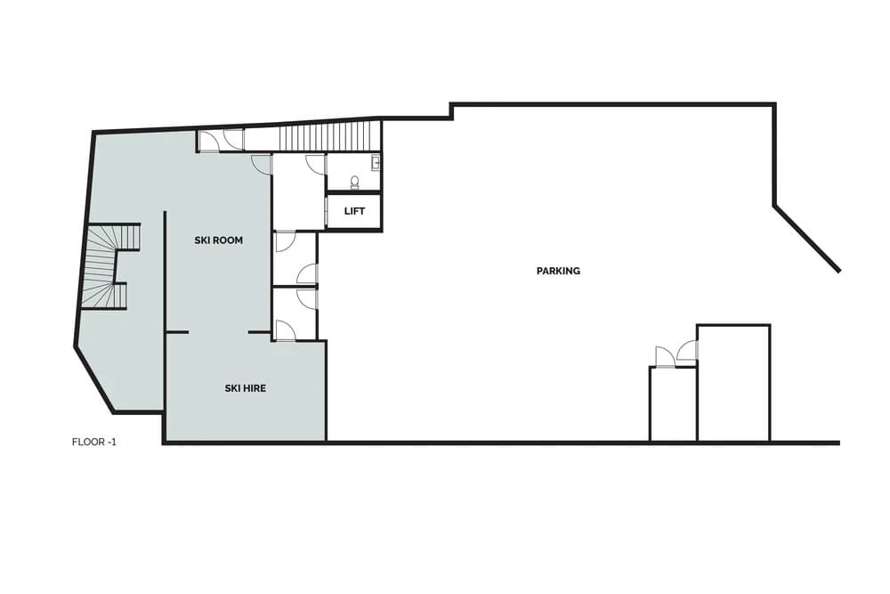
Ski room door to blue piste at 2003m altitude Residence guest bar & lounge Small terrace with private hot tub Water vapour eco-fireplace WiFi
UK FreeSat & Device Casting in all rooms Bean to coffee machine Minibar & ice machine Individual boot & glove warmers Private garage parking & EV charging Not suitable for those with reduced mobility (PRM) Chalet catering Welcome champagne & canapés Wake up drinks Daily cleaning (6 days) Eco-friendly ZERO% toiletries Reception & Concierge Service Massage & beauty treatments (local charge) Managed ski room with on-site ski shop Private ski nannies and Bear Cubs
At a Glance
Property Type
CHALET
Rating
Sleeps
8 - 14
Board Basis
CATERED
Distance to Piste
Ski in/Ski out
Distance to Town
Close to centre
Ski In / Ski Out
Yes
Childcare
Available